︎
Home
︎︎︎ Kontakt
︎︎︎ Info
︎︎︎ Obrazy
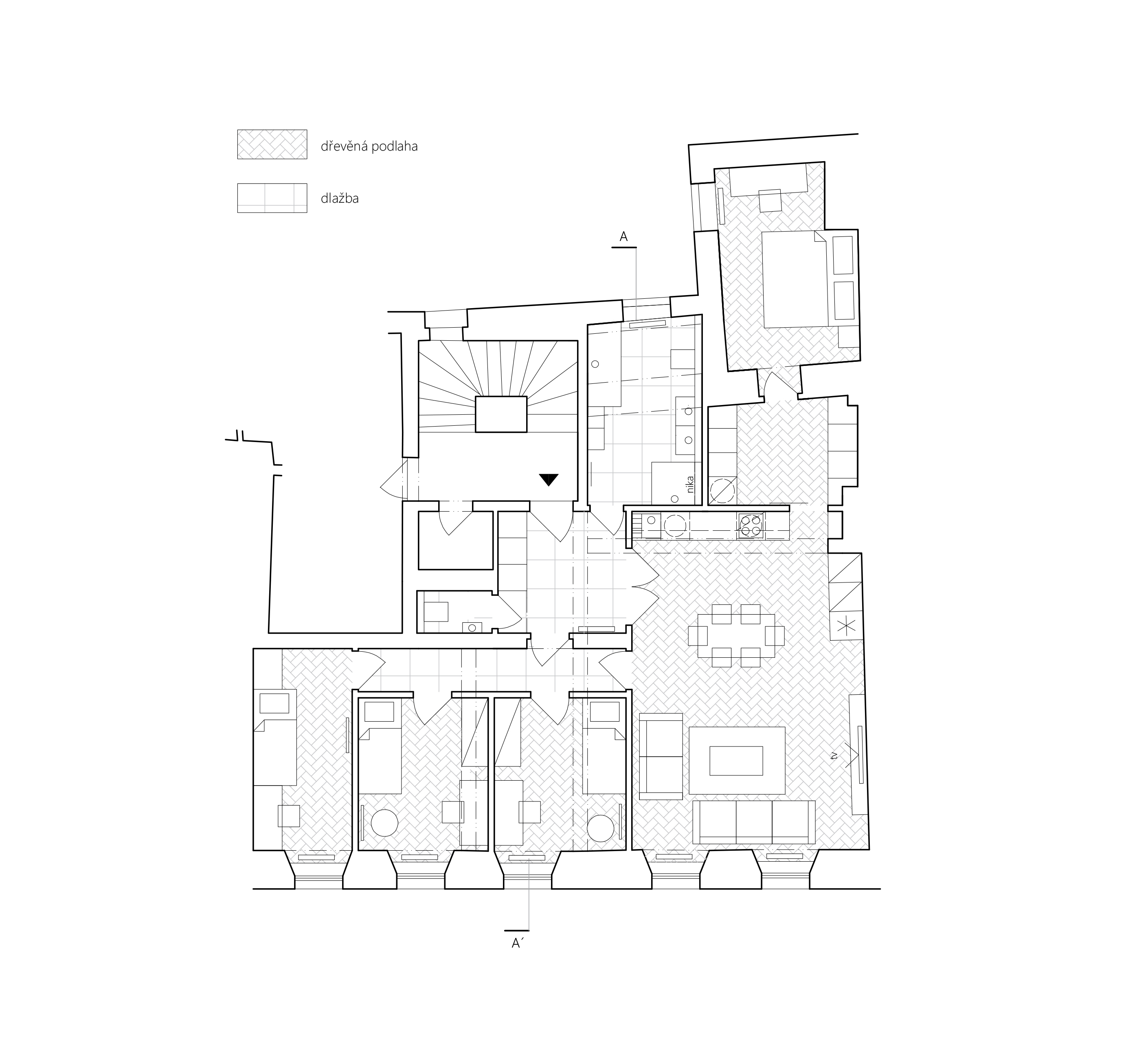
Interiér Litoměřice
Autor: Petr Čmolík
Soukromý projekt