︎
Home
︎︎︎ Kontakt
︎︎︎ Info
︎︎︎ Obrazy
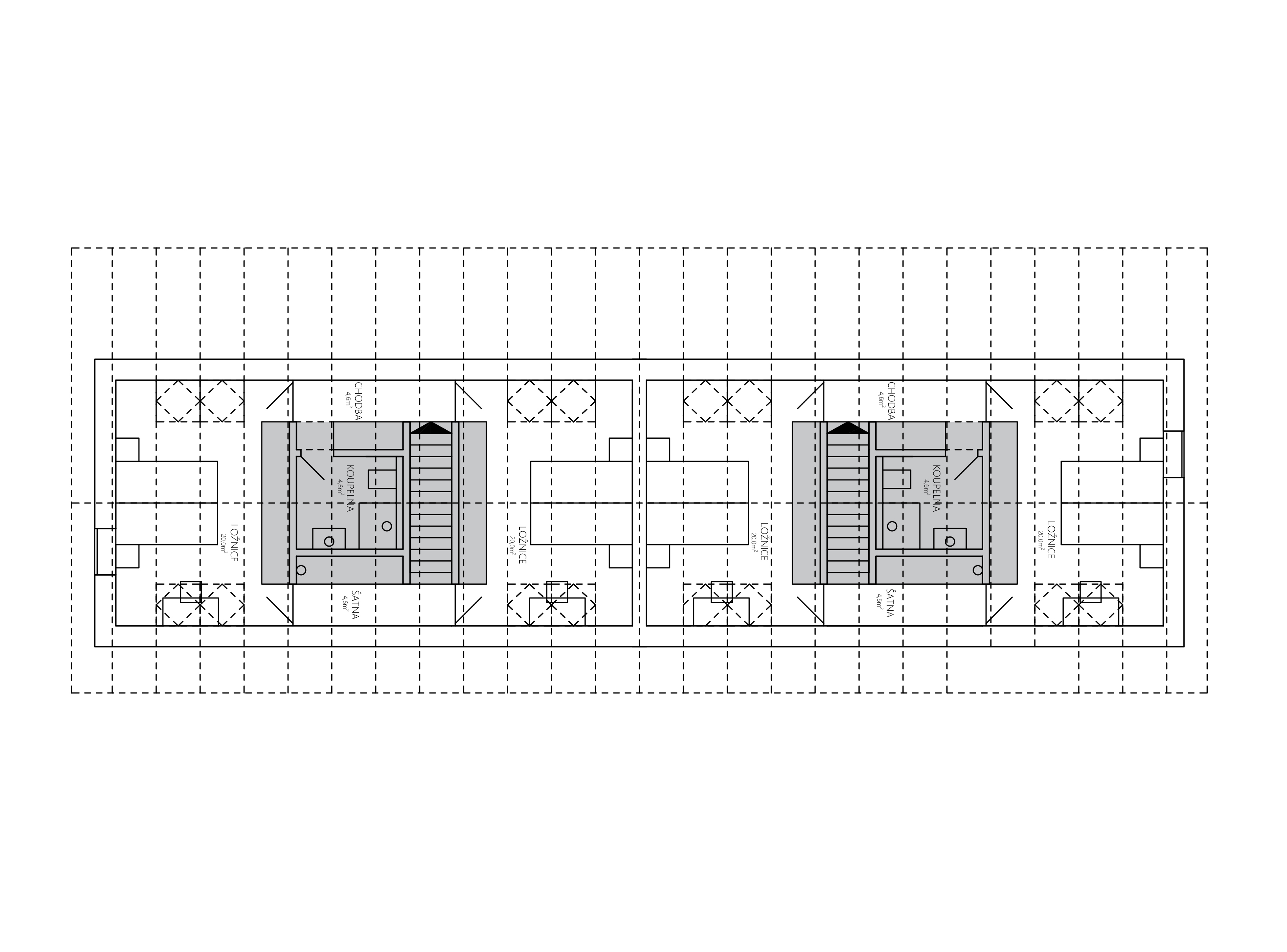
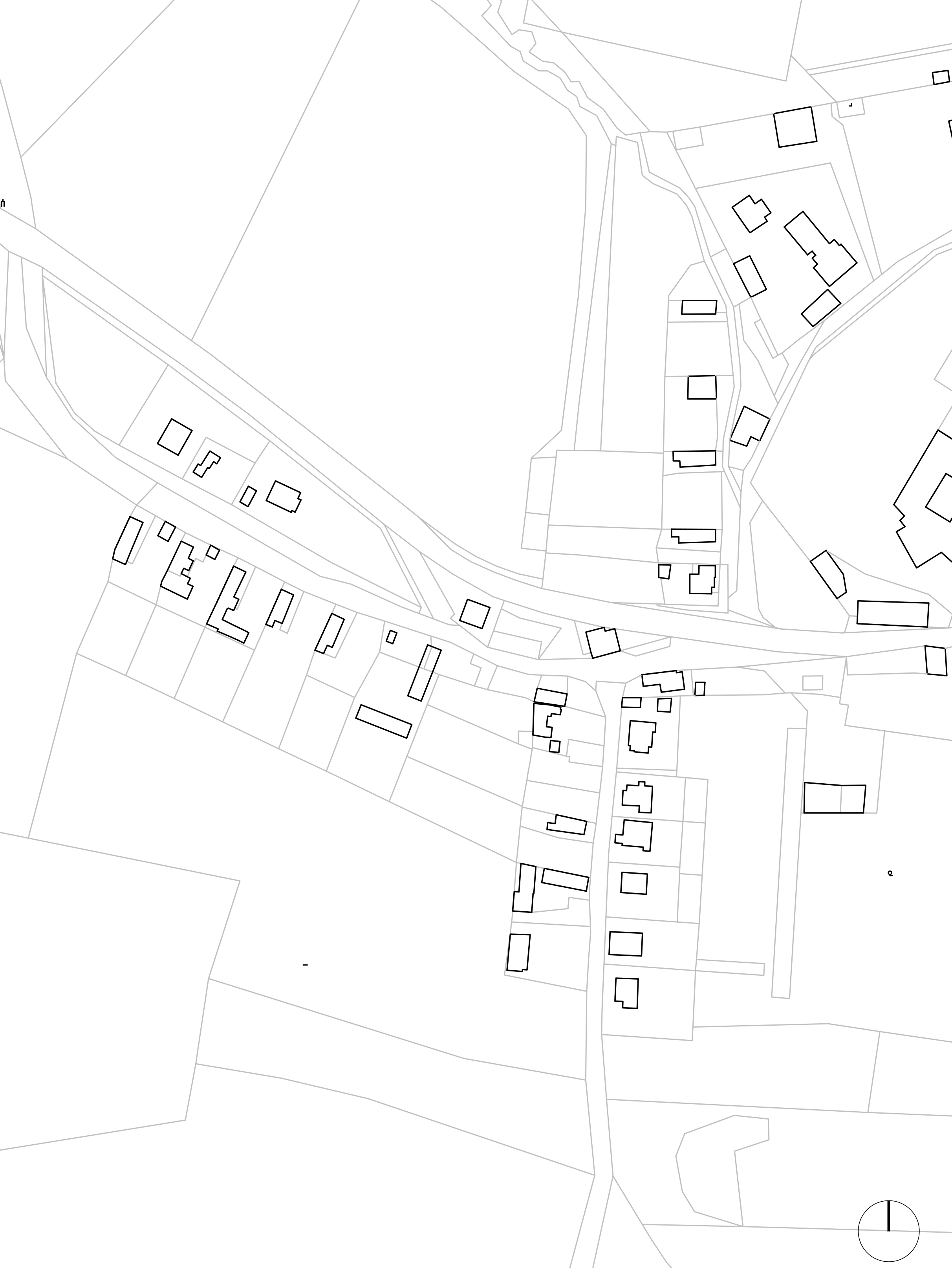
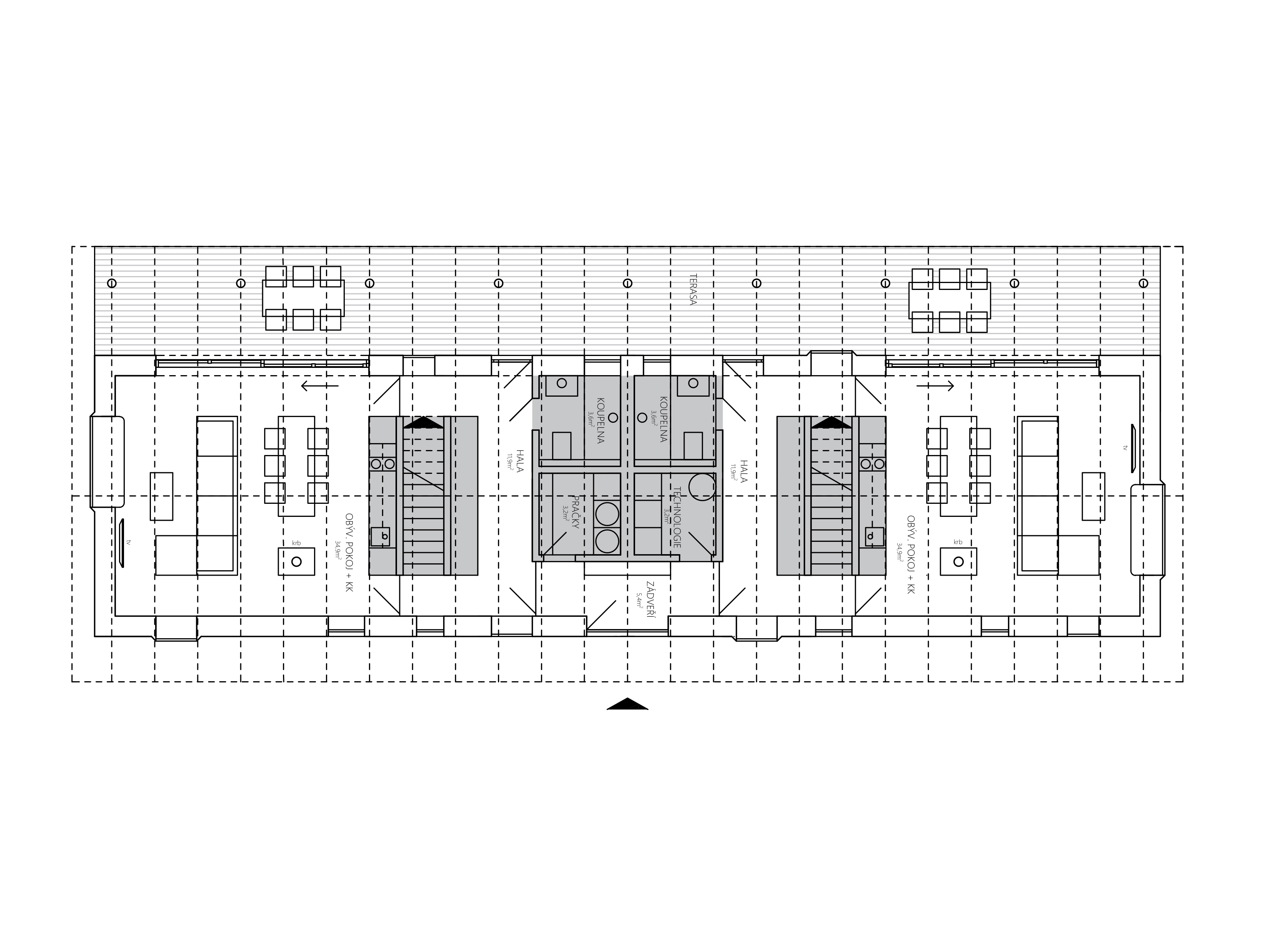
Venkovské stavení Milešov
Autor: Petr Čmolík
Soukromý projekt
Za podnětné rady děkuji Martinu Kožnarovi!